slide

Rivery Sale

Laxmipur

৳500,000

Property Information

  • Building face & Road size: South facing with 60 feet greater road.
  • Building Height: 10 Storied (G+09).
  • Ground Floor for Car Parking.
  • 3 (Three) flats per floor.
  • Unit Size: Type A- 1650 sft, Type B- 1630 sft and Type C- 1550 sft (Approx).
  • Unit Details: Each flat consist of 3 Beds, Living, Dining, 3 Balconies, 3 Toilets & Kitchen.
  • Community Hall & Garden at Rooftop.
  • 02 Passenger Lifts & 02 Stairs.
  • Firefighting arrangement.
  • CCTV and Lightning Protection System.
  • Stand by Generator.

Address : Sipaipara, Rajpara, Rajshahi

Location

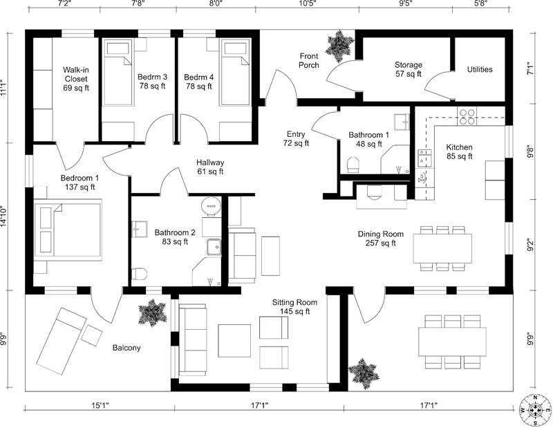
Property Details

  • Type : Apartment
  • Purpose : Sale
  • Bedrooms: 3
  • Bathrooms: 3
  • Area: 1200 Sq-ft
  • Furnishing: Unfurnished

Amenities

  • Security
  • Gymnasium
  • Grand Entrance
  • CCTV Camera

Floor Plan